Zum Hauptinhalt springen

Gebäudeaufnahme 3-D Laserscanning Altstadtgebäude Fronwagplatz

Schaffhausen

2024
Vermessung
Projektbeschrieb

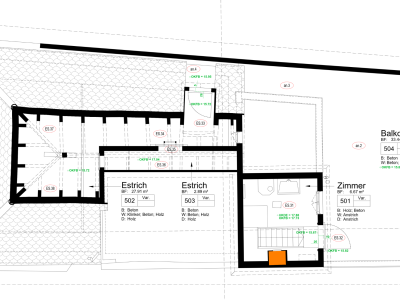
Für den Umbau dieses Altstadthauses, waren die vorhandenen Pläne zu ungenau. Mittels 3D-Laserscanning wurde die Fassade und die obersten beiden Geschosse erfasst. Für die Umbauplanung wurden Ansichten, Grundrisse und Schnitte gezeichnet.

  • Genaue Darstellung der Wohnung im 2. Obergeschoss, Terrasse und des Dachstockes
  • Darstellung der Dachbalken
Leistungen inexo
  • Aufnahme mittels 3D-Laserscanning
  • Auswertung der Aufnahmen in 2D (Schnitte für die oberen Obergeschosse, Aussenansicht, Innenhof mit der Schnittansicht, Dachaufsicht)
Architekt

Oechsli + Partner Architekturbüro AG

27. September 2024