Projektbeschrieb
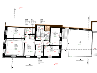
Für die Umbauplanung wurde das bestehende Wohn- und Geschäftshaus im historischen Zentrum von Schaffhausen mittels hochpräzisem 3D‑Laserscanning vollständig erfasst. Die Aufnahme erfolgte sowohl im Innen- als auch im Aussenbereich, um ein durchgängiges und detailliertes Bestandsmodell zu erzeugen.
Besonderheiten
Aufgrund der engen Bebauung in der Altstadt war eine Dachaufnahme mittels stationärem 3D-Laserscaninning nicht möglich. Die Erfassung des Dachbereichs erfolgte daher ergänzend mittels Drohnenaufnahme und Fotogrammetrie.
Leistungen inexo
- Aufnahmen mittels 3D-Laserscanning
- Drohnenaufnahme
- Darstellung der Aufnahmen in einem 3D Modell und in daraus abgeleiteten 2D Plänen (Grundrisse, Schnitte und Fassaden)
Architekt
Büro für Baugeschichte
Schaffhausen
Eckdaten
253 Scanstationen
Drohnenaufnahmen








