Zum Hauptinhalt springen

3D-Laserscanning Wohnhaus mit Ökonomiegebäude

Bertschikon

2025
Vermessung
Projektbeschrieb

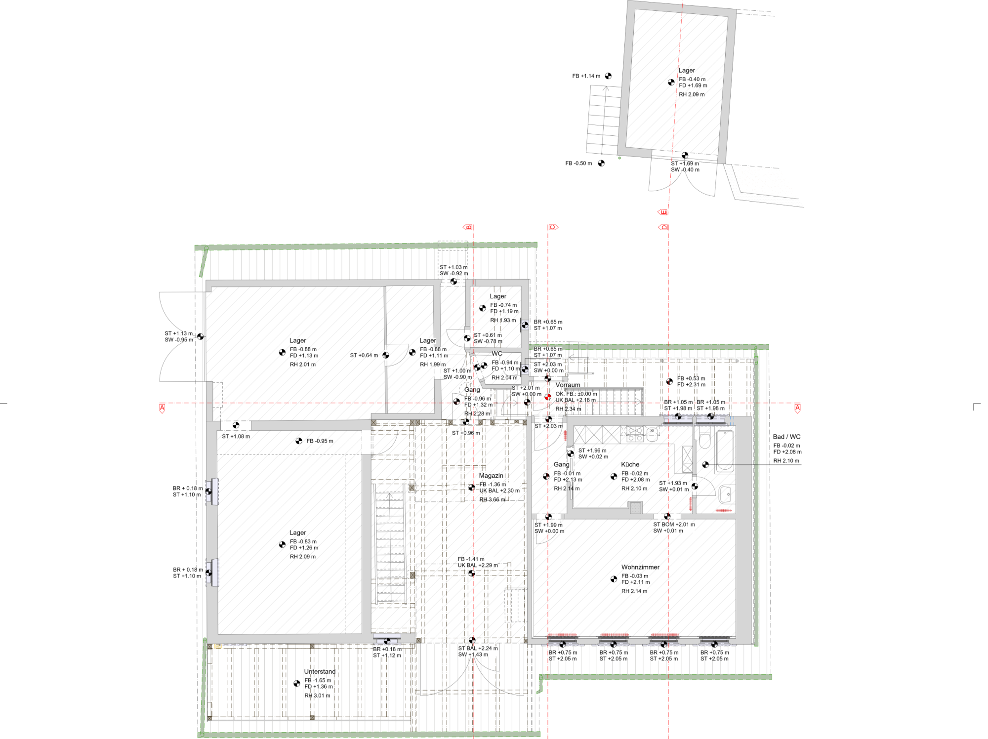
Aufnahme eines bestehenden und in die Jahre gekommenen Bauernhauses mit Ökonomiegebäude mittels 3D-Laserscanning von innen und aussen. Für zukünftige Umbauplanungen stehen nun präzise Pläne beret.

Besonderheiten

Neustadt Architekten

Leistungen inexo
  • Aufnahmen mittels 3D-laerscanning
  • Auswertung der Aufnahmen in 2D (Grundrisse, Schnitte und Ansichten)
Auftraggeber

Privat

30. Juli 2025