Zum Hauptinhalt springen

3D-Laserscanning Wohnhaus und Ökonomiegebäude

Flurlingen

2024
Vermessung
Projektbeschrieb

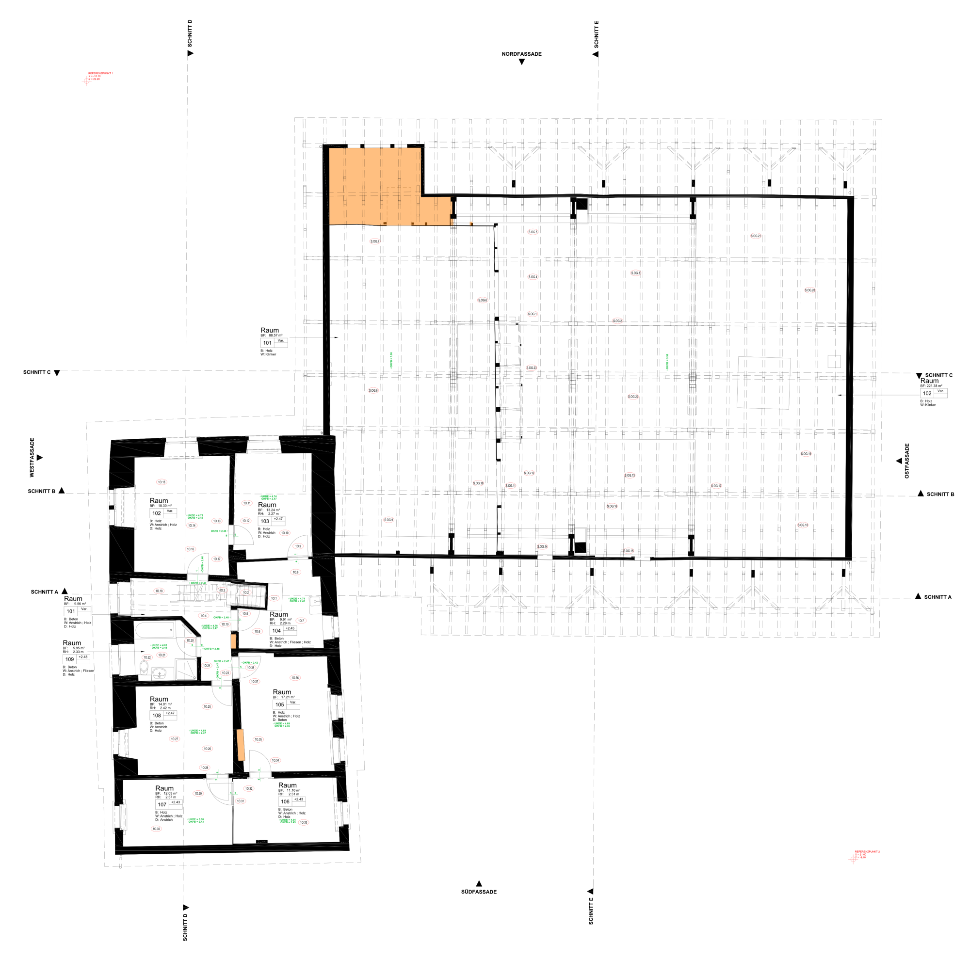
Aufnahme eines bestehenden Einfamilienhaus mit Ökonomiegebäude mittels 3D-Laserscanning von innen und aussen, als Basis für eine Studie und Umbauplanung.

Besonderheiten
  • Genaue Darstellung des Gebäudes
  • Darstellung der Dachbalken
  • Darstellung der Riegel in der Fassade
Leistungen inexo
  • Aufnahmen mittels 3D-Laserscanning
  • Auswertung der Aufnahmen in 2D (Grundrisse, Schnitte und Ansichten)
Bauherr

Privat

Architekt

Nolè – Schneeberger Architekten & Bewerter AG

5. November 2024